Location & Sqft

Location: Colorado Springs.

60,000 sqft.

  • To inspire kids to be excellent

  • To inspire VIPs, donors and sponsors to support the U.S. Olympic and Paralympic Teams.

  • To inspire adults to promote the experience and visit again.

Museum Vision & Goals

The USOPM Museum is the first and only national museum dedicated to U.S. achievements in the Games. The US Olympic & Paralympic Museum presents a seamless combination of architecture, experiences and exhibits.

Visitor Takeaways & Key Audiences

ROle

Design development refinement, client presentations, architectural drawings, 3D visualization, architecture/subconsultants coordination, Shop drawings, all along with larger team members.

The Museum

Designed by world-renowned architect Diller Scofidio & Renfro, the museum building is inspired by the energy and grace of Olympic & Paralympic Athletes in Competition.

The shape of the building is based on the Italian concept of Contrapposto, or counter-pose, where upper body moves in opposition to the lower body in order to achieve balance.


Reimagining Universal Accessibility

The USOPM aspires to be a fully-inclusive experience.

Creating Inclusive Digital Media

Taking inspiration from the Olympic and Paralympic values that underpin the Museum and all it celebrates, paying particular attention to the adoption technology in Paralympism.

Unique Accessibility Features

  • Utilization of tactile universal keypads at all interactives

  • Tactile floor strips to trigger audio descriptions of galleries

  • Optional audio description, recorded with Olympic and Paralympic athletes

  • Text-to-speech screen readers across all interactive screens

  • American Sign Language across all video content

  • Integrated RFID antennas to detect pre-set visitor preferences and load content accordingly.


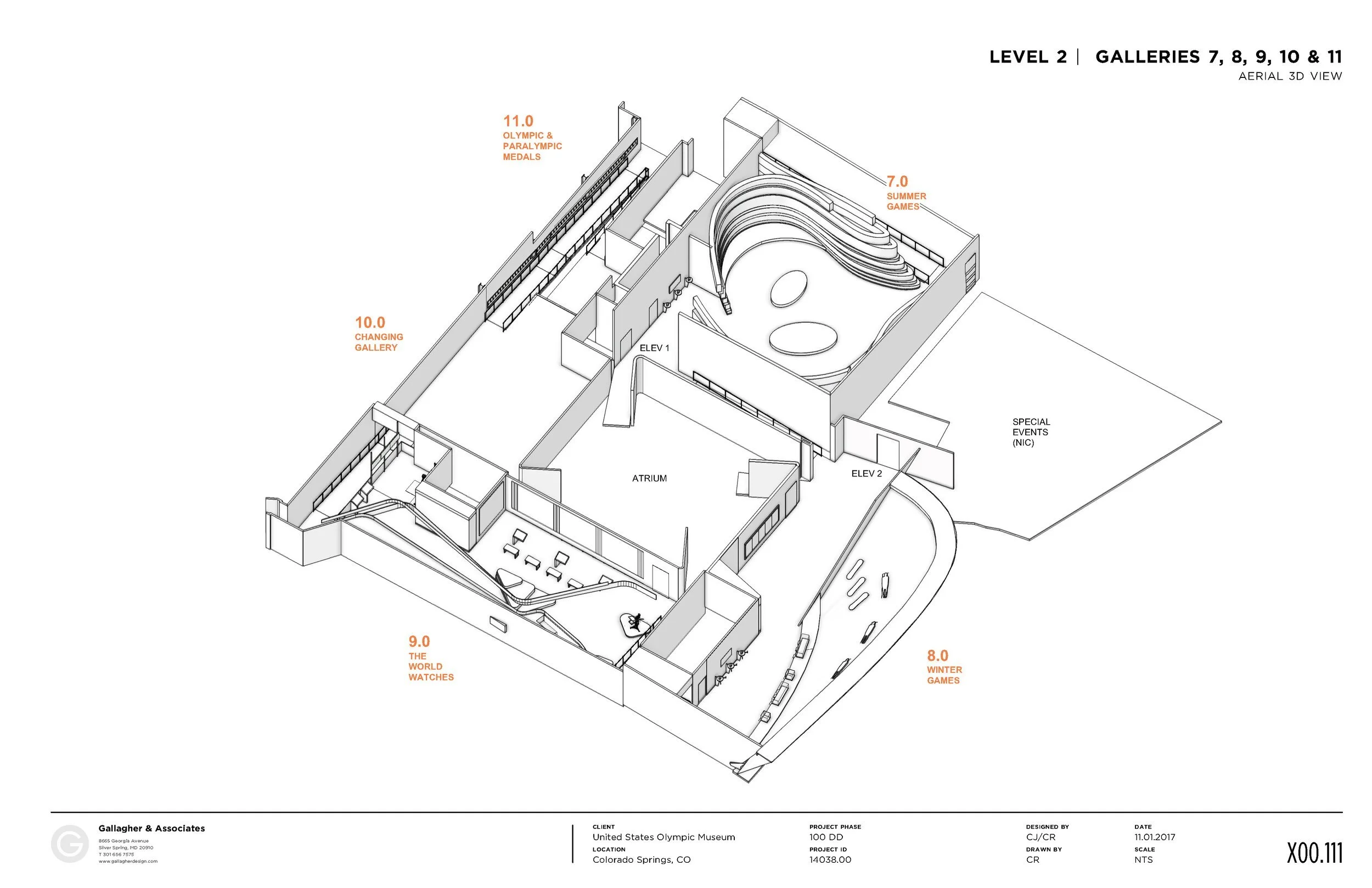
8.0 winter games

The entrance to the Winter Games gallery features skiers and snowboarders flying overhead as visitors walk down.

4.0 Athlete Training

  • Strength & Endurance - Archery

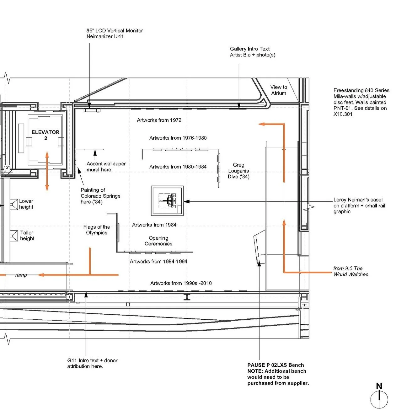
Leroy Neiman Temporary Gallery

The American artist Neiman was the official painter of five Olympic Games and enjoyed preserving the image of athletes at their greatest moments. In the temporary gallery his artwork is presented in a timeline format.


6.0 Parade of nation Gallery

Series of L shaped gates with integrated LED lighting are designed to create an immersive experience where visitors are walking to a stadium. There are integrated directional speakers to along the ramp.

4.0 Athlete Training

  • Mental Training - Alpine Skiing

  • Balance - Skeleton

  • Strategy - Sled Ice Hockey


Design Evolution

The Conceptual Design phase of the project which began in 2014 Early versions of the gallery concepts were provided to the building architects and helped inform the architecture. The specific designs of the galleries went through many iterations, in response primarily to the unique geometry of the building shell and exploration of initial core concepts.



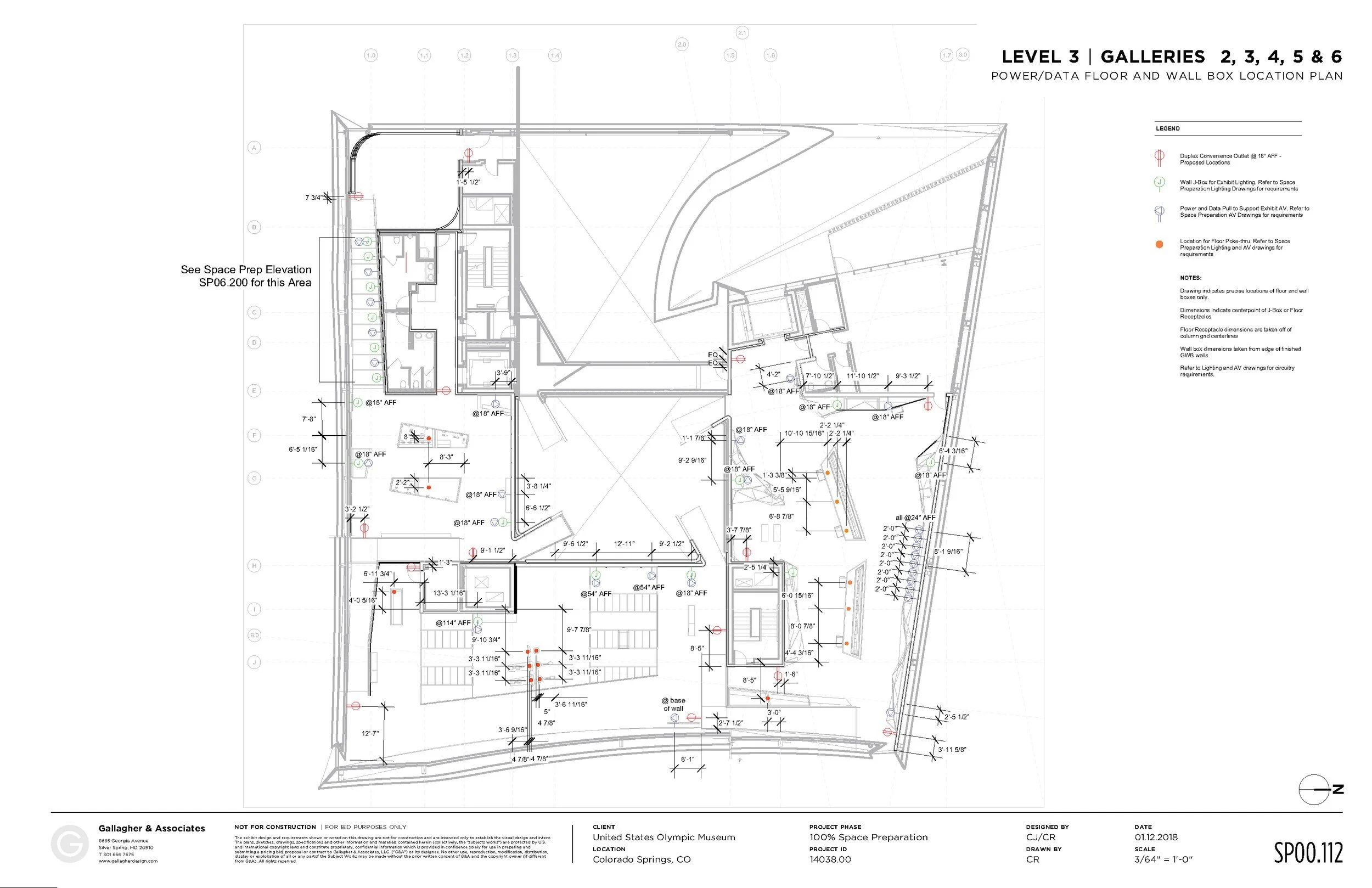
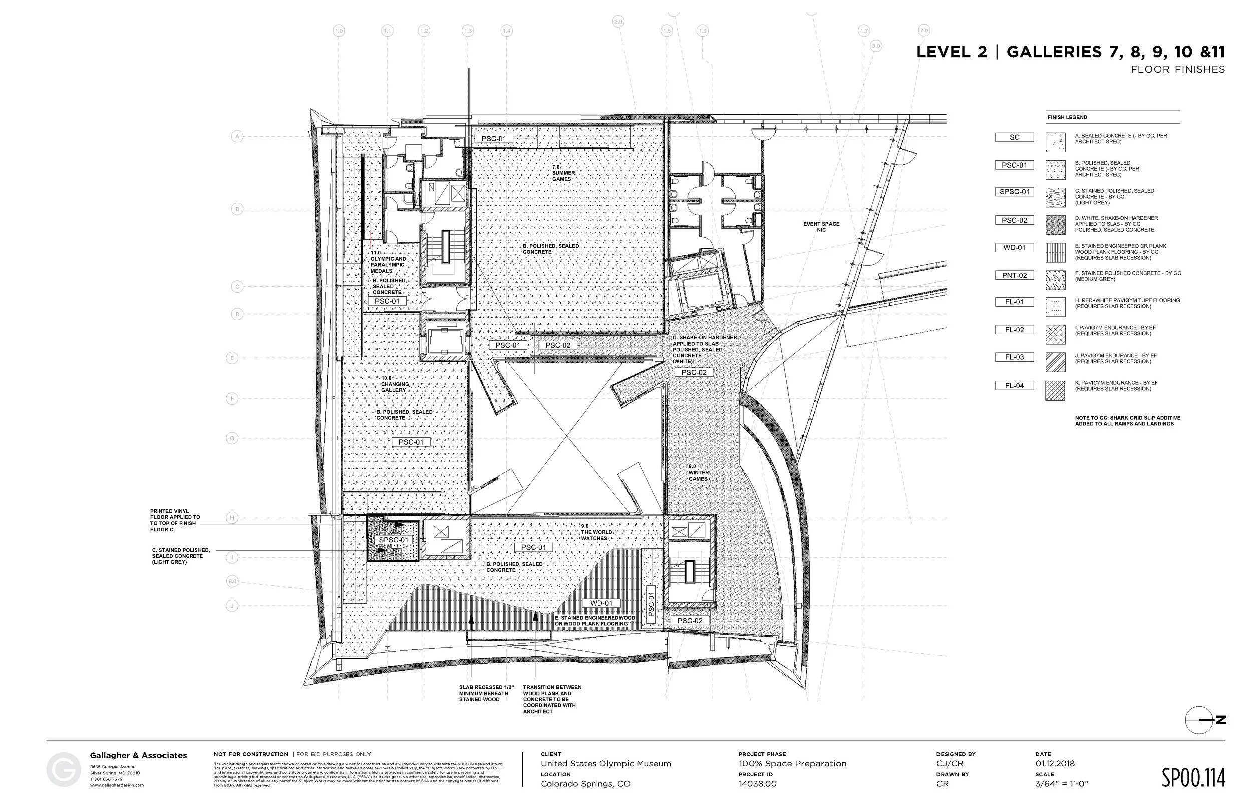
ARCHITECTURAL DRAWINGS


Next
Next

Center For Hope