Mission

The Center for Hope, Humanity and Holocaust Education is dedicated to exploring the lessons of the Holocaust and other crimes against humanity. The Center educates and inspires visitors of diverse backgrounds through local survivor stories, artifacts, immersive media experiences, community outreach and public programs.

Vision

We strive to inspire visitors to learn from the Holocaust, to become upstanders, and to work toward a world without hatred and bigotry.

Key Stakeholders

  • Survivor Community & Descendants

  • Local Universities/Colleges with Related Academic Programs

  • Community Stakeholders

  • Foundations with Relatable Missions

  • Potential Major Donors

Audience

  • School Groups and Students, Especially Middle and High School

  • Local Communities and People of Color

  • Educators

  • Political, Community, and Civic Leaders

Emotional Takeaways

Educate about Holocaust As visitors learn about the Holocaust, they will experience shock, outrage, and anger as they see how hatred and intolerance led to unimaginable atrocity.

Empower learning from the past As visitors reflect on lessons from the past, they will feel empowered and motivated to speak up and take action. Visitors with a Jewish background will feel a sense of pride in their culture; visitors from other backgrounds will leave with an appreciation for Jewish heritage and resilience.

Foster change by applying these lessons to their own lives Through personal connections, visitors will develop empathy, compassion, and respect.

Inspire hope to make a better society Visitors will leave feeling inspired, optimistic, and hopeful, and have a greater appreciation for diversity in their communities.


Location & Sqf

4147 Sqf

KEY VISITOR TAKEAWAYS

The victims of the Holocaust were just like our own families, friends, and neighbors. The hatred unleashed during the Holocaust targeted millions of ordinary people, and visitors should feel empathy and compassion for the lives lost.

The lessons of the Holocaust are still meaningful today. Hatred, intolerance, and bigotry can still be found around the world including within our own society.

We all have an obligation to confront hatred and intolerance. We cannot stand back. We all have a responsibility to be upstanders

We can make a difference. Visitors should feel inspired to take action, to embrace the Jewish value of tikkun olam, to speak out so hatred can be transformed into hope.

Jewish culture and values supported the resilience and recovery of the Jewish community. Visitors should leave appreciating this heritage.

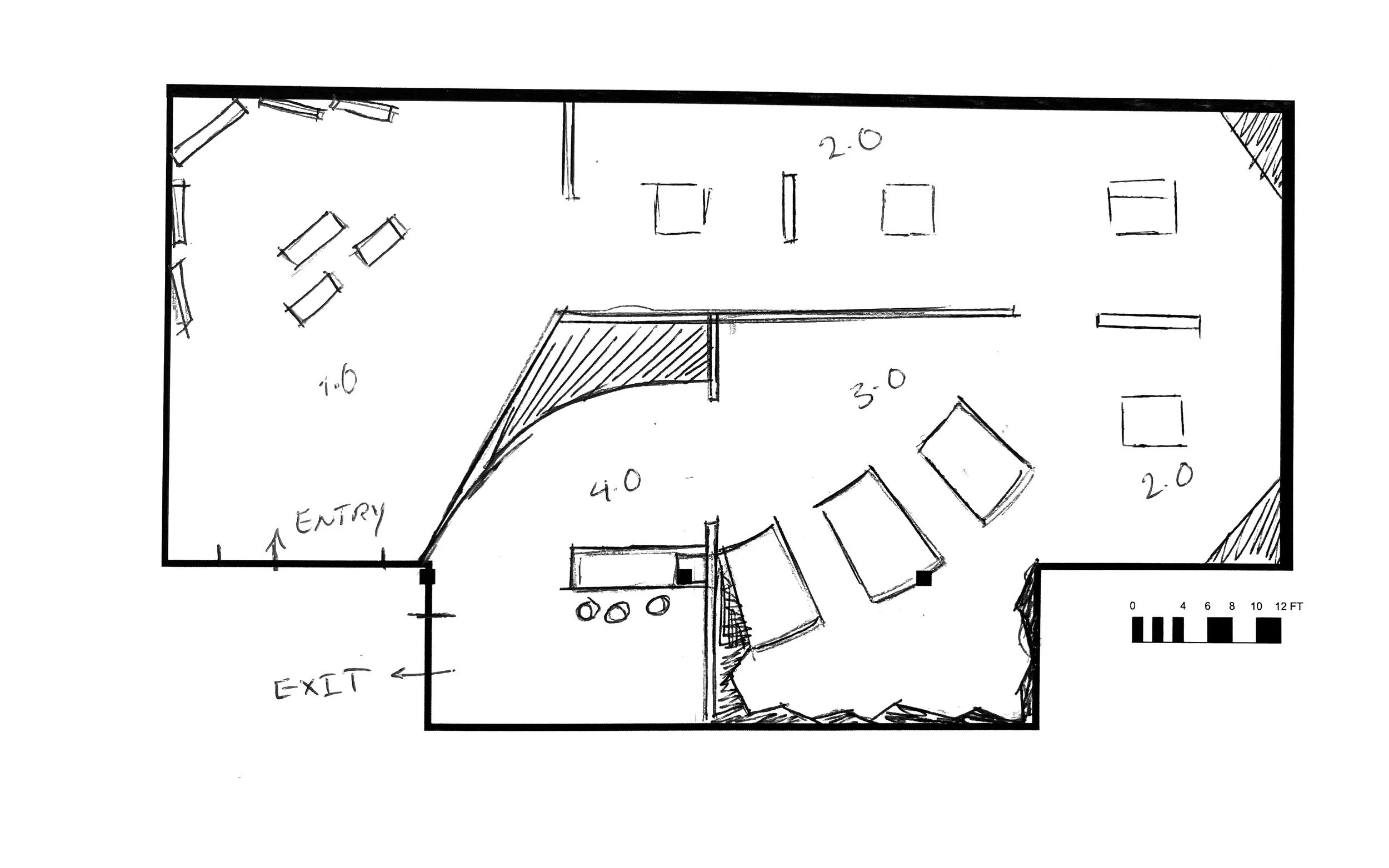
Experience Narrative


Area 1: The Holocaust & the World Today (Learning)

Introduction & Anti-Semitism and Racism Then and Now film transition experience

Area 2: Chronology of the Holocaust (Learning)

2.1: Jewish Life Before the Holocaust / Roots of Anti-Semitism

2.2: Nazi Rise To Power

2.3: WW2 and the Final Solution

2.4: Liberation and Postwar Experience

Area 3.0 Lessons of the Holocaust Reflecting

3.1: Identifying Intolerance

3.2: Refugees and Responsibility

3.3: Resistance and Resilience

4.0 Remembering the Holocaust - From Hate to Hope

Acting

Call to Action



Floor Plan Sketch Process

Emotional Key Ep

Sutz Collection

With the extensive Robert Sutz collection at the museum’s disposal, there are opportunities to incorporate appropriate artworks as they correspond with the gallery themes. The paintings of the Nazi atrocities could potentially be used to help illustrate the cruelty of the Holocaust in Europe in Gallery 2, and the busts, portraits, and supporting videos could be utilized in Gallery 3 to add to the survivor voices being utilized in those stories. Additionally, the temporary space allows for an opportunity to have more focused Robert Sutz exhibits in the future.

Storyboard

The Sutz exhibit is location in the museum’s basemen. The purpose of the design is to create a full projection room to immerse and put visitors in “their shoes”. Visitors will go through different range of emotions from

Options through sketches

Previous
Previous

United States Olympic & Paralympic Museum

Next
Next

THE ALAMO