PROJECT OVERVIEW

The United States Olympic & Paralympic Museum is a highly interactive, accessibility-driven experience designed to celebrate the achievements of Team USA athletes. The project integrates architecture, storytelling, and digital interaction to create a personalized and inclusive visitor journey across physical and media environments.

Role

Contributed to the design development of multiple gallery experiences, translating narrative concepts into spatial and interactive user journeys. Responsibilities included 3D visualization, design documentation, coordination with architects and media teams, and supporting client presentations throughout the project lifecycle.

Location & Sqft

Location: Colorado Springs.

60,000 sqft.

Museum Vision & Goals

The project addressed the challenge of designing an inclusive, multi-sensory experience for visitors with diverse abilities and expectations. It required the development of a flexible system that supports personalized engagement while maintaining a cohesive narrative across physical and digital touch points. The solution focused on integrating accessibility, interaction design, and spatial storytelling into a seamless user journey.

Visitor Takeaways & Key Audiences

  • Engage younger audiences through interactive, story-driven experiences that encourage exploration and active participation

  • Create meaningful and memorable experiences for supporters, donors, and sponsors to strengthen emotional connection with Team USA

  • Encourage repeat visitation by delivering dynamic, personalized content that evolves with each visit


The Museum

Designed by world-renowned architect Diller Scofidio & Renfro, the museum building is inspired by the energy and grace of Olympic & Paralympic Athletes in Competition.

The shape of the building is based on the Italian concept of Contrapposto, or counter-pose, where upper body moves in opposition to the lower body in order to achieve balance.


Reimagining Universal Accessibility

Accessibility was approached as a core system rather than a set of individual features. The experience was designed to adapt to a wide range of physical, sensory, and cognitive needs, allowing visitors to engage with content in ways that best suit their preferences and abilities.

Unique Accessibility Features

An integrated network of physical and digital touchpoints supports accessibility across the museum experience. These include tactile input systems, floor-triggered audio navigation, athlete-narrated descriptions, screen reader compatibility, and American Sign Language integration.

An RFID-enabled system allows visitors to customize their experience, dynamically adjusting content delivery based on individual accessibility preferences—creating a seamless and personalized user journey.

This approach positions accessibility as an integral part of the experience rather than a secondary layer, ensuring inclusivity is embedded throughout the user journey


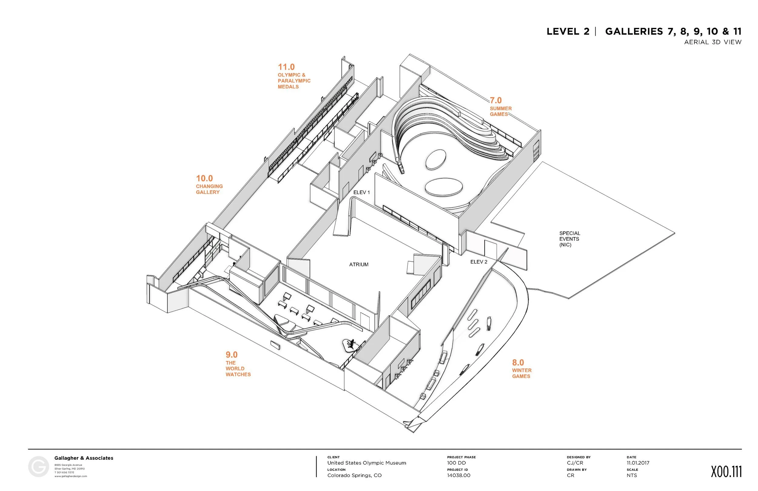
winter games

An immersive entry experience designed to evoke the energy and movement of winter sports. Overhead visuals and spatial choreography guide visitors into the gallery, creating a dynamic transition that builds anticipation and sets the tone for the overall experience.

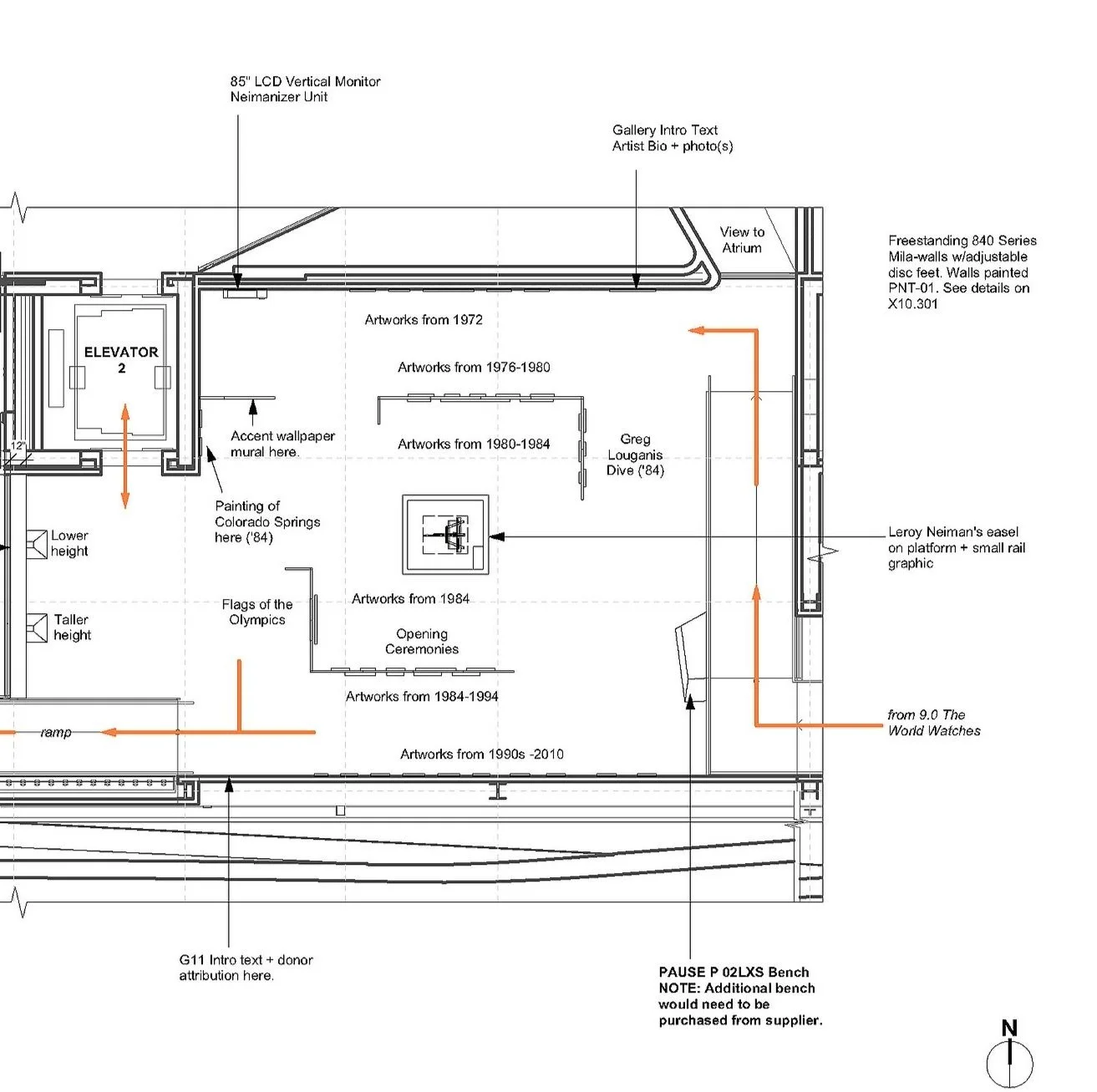
Leroy Neiman Temporary Gallery

A narrative-driven gallery that presents the work of Leroy Neiman through a structured timeline. The experience highlights key Olympic moments, using visual storytelling to connect art, history, and athletic achievement.


Parade of nation Gallery

A spatially guided procession that recreates the emotional experience of entering an Olympic stadium. Sequential structural elements, combined with lighting and directional audio, create rhythm and movement, immersing visitors in a collective, celebratory moment.

ATHLETE TRAINING

An interactive environment that explores the physical and mental demands of elite training. The experience encourages active participation through challenges focused on strength, endurance, and coordination, allowing visitors to engage directly with the realities of athletic performance.


Design Evolution

The project evolved through multiple phases of iteration, beginning with early concept development and continuing through detailed design refinement. Each gallery was shaped by the interaction between spatial constraints, narrative goals, and user experience considerations.

Design decisions were continuously evaluated to ensure alignment between storytelling, accessibility, and engagement, resulting in a cohesive experience that integrates physical space and digital interaction.



ARCHITECTURAL DRAWINGS


Next
Next

National Underground Freedom Center