Overarching Concept (big picture)

To create a space that look like a children’s’ pop up book. An exciting space with different pops of color to capture to entertain children.

Goal

  • What does it mean to be a Tennessean at this age? an appreciation of the state

  • Children understand space rather than time

Target Audience

Children from 3-8

Role

Main driver of the space design & interactions’ refinements , brainstorm, research, initial sketches, concept design development, 3D visualization, specification documentation, client presentations.

Theme

The room is themed with the geography of Tennessee. There is a map of Tennessee as flooring for visitors to recognize where they are in the state.


Farmers market

To create a market for children to pick fruits, plant their garden and learn to exchange. Tennessee farmers sell their goods at local markets. There are over 130 farmers markets in the state of Tennessee. Join in the farming fun and take your crops to market!

Reading Nook

West Tennessee is home to many famous storytellers. Read a book while you float in a boat. Boat seating is inspired by Tennessee boaters.

Front Desk

Using existing graphics to be repurposed for the front desk. A rule’s panel is mounted on the back wall for visitors

Location & Sqft:

Nashville, Tennessee, 2849 sqft.


Lookout Mountain (Chattanooga Choo-Choo)

Lookout Mountain has been a major landmark since native Americans first settled there. Today, visitors can see Rock City, Ruby Falls, the Incline Railway, and a Civil War battlefield. For a long time, almost every train traveling around the South came through Chattanooga. Become a train engineer and blow your whistle! Choo-Choo!


Mississippi River/Memphis

This section of the gallery is inspired by front porch of Memphis city Mississippi River, known for the influential strains of blues, and rock 'n' roll that originated there. In order to create a stage like space for small storytelling, puppet, or music shows of one or more people.

REELFOOT LAKE EARTHQUAKE TABLE

The table is made up of three separate surfaces. The outer surface has a brief fun facts and content about the earthquake and the formation of Reelfoot Lake. There is an illuminated start button. As visitors push the button, the table gets activated and the fishes will pop out. This interactive will take 15 seconds to go back to its start point.


Smoky Mountains

There are rotating disks with graphic at face and touchable surface inside on the buildout smoky mountain model to reveal content for children. The Smoky Mountains are home to many different animals. Black bears are one of the highlights. In their Smoky Mountain habitat, bears eat a lot of berries, nuts, and insects.


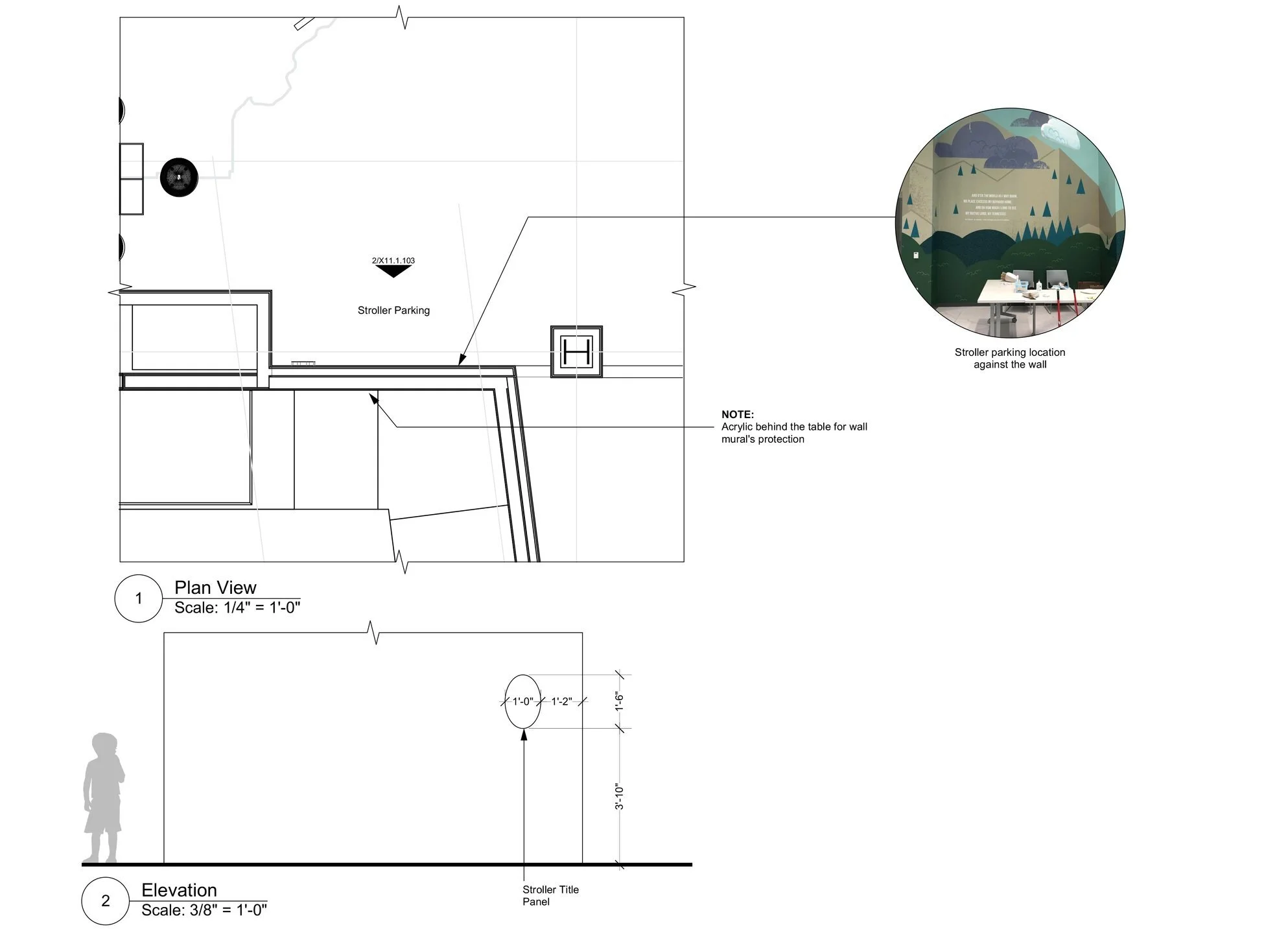
Drawing Table

There is integrated storage for pen and pencil for children to draw. The table is inspired by clouds to represent Tennessee sky since overall gallery is based on different facts of Tennessee.


Gray Fossil Interactive

This tactile interactive has 3D bas-relief surface with pencil and paper on the side for children to draw on. The Gray Fossil Site in Washington County holds fossils that date back from 7 million to 4.5 million years ago and is known as the world’s largest tapir fossil find.

Stroller Parking

A space for parents to keep their children’s strollers while being in the gallery.

Previous
Previous

Junior Achievement

Next
Next

Little Black Door