Location & Sqft

Washington, DC, 16,206 sqft.

ROLE

Led and contributed to the design development of key gallery and visitor experience components, translating complex civic content into accessible and engaging spatial narratives. Responsibilities included 3D modeling, design documentation, coordination with multidisciplinary teams, and supporting the integration of media and interactive elements.


Galleries

AV: Introduction & Orientation

2. Congress Over Time

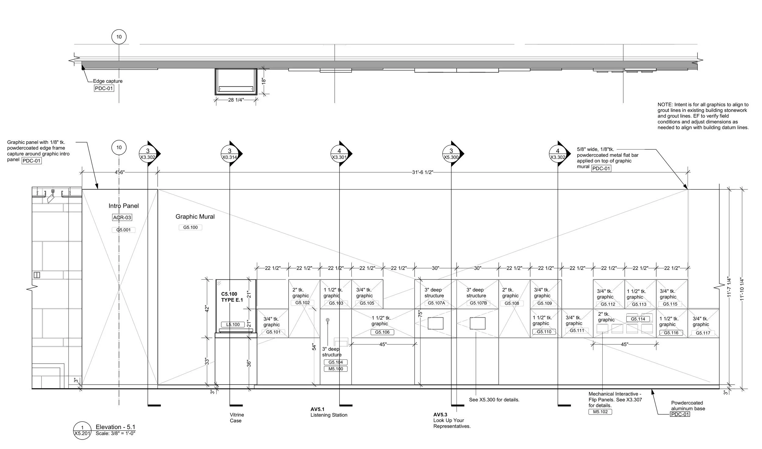
3. Impact of Congress

4. The Nation's Capitol

Architectural drawings

5. What's My Role?

6. What is Congress?

7. Discovery Lab

8. Changing Gallery


PROJECT OVERVIEW

The Capitol Visitor Center is a large-scale civic experience designed to support high visitor volumes while providing an engaging and educational introduction to the United States Capitol. The project integrates spatial design, storytelling, and interactive media to create a clear, accessible, and informative visitor journey within a highly secure and complex environment.

Goals

The project addressed the challenge of accommodating large volumes of visitors while delivering a clear, engaging, and accessible educational experience. It required designing intuitive circulation, reducing congestion, and integrating storytelling within a highly controlled and secure environment. The goal was to create a seamless visitor journey that balances information, movement, and engagement.


Interactive Experience Highlights

The exhibition integrates a series of interactive experiences designed to translate complex civic processes into engaging, accessible, and participatory moments. These interactives support a range of learning styles, encouraging visitors to actively explore how Congress functions through decision-making, collaboration, and hands-on engagement.

Pass a Bill (Decision-Based Interactive)

An interactive simulation that guides visitors through the legislative process, allowing them to navigate key decision points involved in passing a bill. The experience breaks down complex procedures into a step-by-step journey, reinforcing understanding through active participation and real-time feedback.

Speak Up (Participation / Expression)

A participatory station that invites visitors to share their perspectives on civic topics, emphasizing the role of individual voice within a democratic system. The experience encourages reflection and engagement, connecting personal opinion to broader civic processes.

Creating Compromise (Collaborative Experience)

A collaborative interactive that introduces visitors to the concept of negotiation and compromise within Congress. By presenting multiple viewpoints and outcomes, the experience highlights the complexity of decision-making and the importance of balancing diverse perspectives.

DEMOCRACY LAB

The Democracy Lab functions as a hands-on learning environment where visitors—particularly younger audiences—engage with civic concepts through interactive stations and group-based activities. The space supports exploratory learning, combining physical interaction with simplified content delivery to make complex systems more accessible.




Previous
Previous

Center For Hope

Next
Next

THE ALAMO